水工資材事業お問い合わせ
シェークブロック
- 主な特徴
-
正四面体の噛合せにより、どのような現場でも安定した敷設が可能です。また、KD値は8.6、空隙率は56%であり、安定性および経済性に優れた製品です。
- 用 途
-
海岸:離岸堤・消波工、突堤・消波堤
河川:根固工護岸ブロックの水理特性値証明書取得
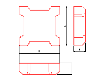
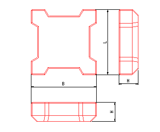
形状・諸元表
シェークブロック[1.0~50.0ton型] CADデータダウンロード(会員専用)
![シェークブロック[1.0~50.0ton型]](./img/water/shape_shake01.gif)
| 規格 (ton型) | 体積 (㎥) | 型枠面積 (㎡) | 実質量 (ton) | 実重量 (KN) | 基本寸法(単位:m) | ||
|---|---|---|---|---|---|---|---|
| g | h | l | |||||
| 1.0 | 0.436 | 3.761 | 1.003 | 9.836 | 1.440 | 1.194 | 1.298 |
| 2.0 | 0.870 | 6.185 | 2.001 | 19.623 | 1.813 | 1.503 | 1.628 |
| 3.0 | 1.300 | 8.084 | 2.990 | 29.322 | 2.073 | 1.718 | 1.861 |
| 4.0 | 1.735 | 9.796 | 3.991 | 39.138 | 2.282 | 1.891 | 2.048 |
| 5.0 | 2.180 | 11.410 | 5.014 | 49.171 | 2.463 | 2.041 | 2.211 |
| 6.0 | 2.611 | 12.867 | 6.005 | 58.889 | 2.615 | 2.167 | 2.348 |
| 8.0 | 3.469 | 15.550 | 7.979 | 78.247 | 2.875 | 2.383 | 2.581 |
| 10.0 | 4.353 | 18.090 | 10.012 | 98.184 | 3.101 | 2.570 | 2.784 |
| 12.0 | 5.213 | 20.400 | 11.990 | 117.582 | 3.293 | 2.729 | 2.956 |
| 15.0 | 6.516 | 23.671 | 14.987 | 146.972 | 3.547 | 2.940 | 3.184 |
| 20.0 | 8.680 | 28.659 | 19.964 | 195.780 | 3.903 | 3.235 | 3.504 |
| 25.0 | 10.878 | 33.313 | 25.019 | 245.353 | 4.208 | 3.488 | 3.777 |
| 30.0 | 13.069 | 37.649 | 30.059 | 294.778 | 4.474 | 3.708 | 4.016 |
| 40.0 | 17.383 | 45.534 | 39.981 | 392.080 | 4.920 | 4.077 | 4.416 |
| 50.0 | 21.711 | 52.809 | 49.935 | 489.695 | 5.298 | 4.391 | 4.756 |
大型シェークブロック[60.0~80.0ton型]CADデータダウンロード(会員専用)
![大型シェークブロック[60.0~80.0ton型]](./img/water/shape_shake02.gif)
| 規格 (ton型) | 体積 (㎥) | 型枠面積 (㎡) | 実質量 (ton) | 実重量 (KN) | 基本寸法(単位:m) | ||
|---|---|---|---|---|---|---|---|
| g | h | l | |||||
| 60.0 | 26.143 | 57.183 | 60.128 | 589.654 | 5.327 | 4.422 | 4.812 |
| 80.0 | 34.869 | 69.288 | 80.199 | 786.484 | 5.864 | 4.868 | 5.297 |
截頭型シェークブロックCADデータダウンロード(会員専用)

| 規格 (ton型) | 体積 (㎥) | 型枠面積 (㎡) | 実質量 (ton) | 実重量 (KN) | 基本寸法(単位:m) | ||
|---|---|---|---|---|---|---|---|
| g | h | l | |||||
| 1.5 | 0.707 | 4.880 | 1.626 | 15.946 | 1.813 | 0.769 | 1.628 |
| 2.5 | 1.056 | 6.379 | 2.429 | 23.820 | 2.073 | 0.880 | 1.861 |
| 3.0 | 1.409 | 7.731 | 3.241 | 31.783 | 2.282 | 0.968 | 2.048 |
| 4.0 | 1.771 | 9.004 | 4.073 | 39.942 | 2.463 | 1.045 | 2.211 |
| 5.0 | 2.120 | 10.153 | 4.876 | 47.817 | 2.615 | 1.110 | 2.348 |
| 6.5 | 2.817 | 12.271 | 6.479 | 63.537 | 2.875 | 1.220 | 2.581 |
| 8.0 | 3.535 | 14.276 | 8.131 | 79.738 | 3.101 | 1.316 | 2.784 |
| 10.0 | 4.233 | 16.099 | 9.736 | 95.478 | 3.293 | 1.397 | 2.956 |
| 12.0 | 5.291 | 18.680 | 12.169 | 119.337 | 3.547 | 1.505 | 3.184 |
| 16.0 | 7.048 | 22.616 | 16.210 | 158.966 | 3.903 | 1.656 | 3.504 |
| 20.0 | 8.833 | 26.288 | 20.316 | 199.232 | 4.208 | 1.786 | 3.777 |
施工事例
-

- 兵庫県 妻鹿漁港
標準型シェークブロック4ton型
-

- 静岡県 清水海岸
截頭型シェークブロック10ton型
-

- 静岡県 富士海岸
大型シェークブロック60ton型
-

- 静岡県 篠原海岸
標準型シェークブロック25ton型
サーフブロック
- 主な特徴
-
ブロック表面の粗度が適度であり、また、重心が低いために海岸および河川における外力に対し、優れた安定性を有したブロックです。
- 用 途
-
海岸:人工リーフ工、緩傾斜護岸工、被覆工、根固工
河川:根固工、護床工
※九州営業部管内におきまして、10.0t型サーフブロックおよび大型サーフブロックは暫くの間、営業休止とさせていただきます。ご検討の際は、九州営業部までお問い合わせください。
形状・諸元表
サーフブロック[1.0~15.0ton型]CADデータダウンロード(会員専用)
![サーフブロック[1.0~15.0ton型]](./img/water/shape_surf01.gif)
| 規格 (ton型) | 体積 (㎥) | 型枠面積 (㎡) | 実質量 (ton) | 実重量 (KN) | 基本寸法(単位:m) | ||
|---|---|---|---|---|---|---|---|
| L | B | H | |||||
| 1.0 | 0.435 | 4.453 | 1.001 | 9.816 | 1.190 | 1.190 | 0.525 |
| 2.0 | 0.871 | 7.076 | 2.003 | 19.643 | 1.500 | 1.500 | 0.662 |
| 3.0 | 1.305 | 9.260 | 3.002 | 29.440 | 1.716 | 1.716 | 0.757 |
| 4.0 | 1.743 | 11.234 | 4.009 | 39.315 | 1.890 | 1.890 | 0.833 |
| 5.0 | 2.176 | 13.023 | 5.005 | 49.082 | 2.035 | 2.035 | 0.897 |
| 6.0 | 2.609 | 14.700 | 6.001 | 58.850 | 2.162 | 2.162 | 0.953 |
| 8.0 | 3.481 | 17.814 | 8.006 | 78.512 | 2.380 | 2.380 | 1.050 |
| 10.0 | 4.352 | 20.674 | 10.010 | 98.165 | 2.564 | 2.564 | 1.131 |
| 12.0 | 5.219 | 23.335 | 12.004 | 117.719 | 2.724 | 2.724 | 1.201 |
| 15.0 | 6.528 | 27.090 | 15.015 | 147.247 | 2.935 | 2.935 | 1.294 |
※鉄筋連結に関する詳細は、お問い合わせ下さい。
※変形型(半ブロック)もございます。詳細は、お問い合わせ下さい。
大型サーフブロック[20.0~30.0ton型]CADデータダウンロード(会員専用)
![大型サーフブロック[20.0~30.0ton型]](./img/water/shape_surf02.gif)
| 規格 (ton型) | 体積 (㎥) | 型枠面積 (㎡) | 実質量 (ton) | 実重量 (KN) | 基本寸法(単位:m) | ||
|---|---|---|---|---|---|---|---|
| L | B | H | |||||
| 20.0 | 8.713 | 28.648 | 20.039 | 196.515 | 3.500 | 3.000 | 1.340 |
| 25.0 | 10.880 | 33.975 | 25.024 | 245.402 | 3.850 | 3.000 | 1.490 |
| 30.0 | 13.058 | 38.594 | 30.033 | 294.523 | 3.850 | 3.000 | 1.745 |
※ブロック転置には吊り鉄筋を使用します。吊り鉄筋の詳細は、お問い合わせ下さい。
施工事例
-

- 静岡県 足取川護床工
サーフブロック2ton型
-

- 大分県 山国橋橋脚根固工
サーフブロック4ton型
-

- 北海道 白老海岸離岸堤工
サーフブロック2ton型
-

- 秋田県 本荘港離岸堤工
サーフブロック3ton型
サーフフラット
- 主な特徴
-
サーフフラットは、平打ちであり、型枠の構造も底板1枚側枠4枚(Nタイプ)からなり、組立・打設等の作業が容易です。また、単位面積当たりの所要数量が少ない為、優れた経済性を有しています。
- 用 途
-
海岸:人工リーフ工、緩傾斜護岸工、被覆工、根固工
河川:根固工、護床工護岸ブロックの水理特性値証明書取得
形状・諸元表
サーフフラット[Kタイプ]CADデータダウンロード(会員専用)
![サーフフラット[Kタイプ]](./img/water/shape_flat01.gif)
| 規格 (ton型) | 体積 (㎥) | 型枠面積 (㎡) | 実質量 (ton) | 実重量 (KN) | 基本寸法(単位:m) | ||
|---|---|---|---|---|---|---|---|
| L | B | H | |||||
| 1.0 | 0.462 | 3.188 | 1.062 | 10.415 | 1.300 | 1.300 | 0.459 |
| 2.0 | 0.904 | 4.999 | 2.079 | 20.388 | 1.600 | 1.600 | 0.583 |
| 3.0 | 1.391 | 7.331 | 3.199 | 31.371 | 1.890 | 1.890 | 0.629 |
| 4.0 | 1.789 | 8.315 | 4.114 | 40.345 | 2.035 | 2.035 | 0.709 |
| 5.0 | 2.285 | 9.630 | 5.255 | 51.534 | 2.162 | 2.162 | 0.763 |
| 6.0 | 2.702 | 10.843 | 6.214 | 60.939 | 2.380 | 2.380 | 0.783 |
※鉄筋連結に関する詳細は、お問い合わせ下さい。
※ブロック転置には吊り鉄筋を使用します。吊り鉄筋の詳細は、お問い合わせ下さい。
サーフフラット[KAタイプ]CADデータダウンロード(会員専用)
![サーフフラット[KAタイプ]](./img/water/shape_flat02.gif)
| 規格 (ton型) | 体積 (㎥) | 型枠面積 (㎡) | 実質量 (ton) | 実重量 (KN) | 基本寸法(単位:m) | ||
|---|---|---|---|---|---|---|---|
| L | B | H | |||||
| 1.0 | 0.437 | 3.479 | 1.005 | 9.856 | 1.300 | 1.300 | 0.459 |
| 2.0 | 0.870 | 5.397 | 2.001 | 19.623 | 1.600 | 1.600 | 0.583 |
| 3.0 | 1.308 | 7.924 | 3.008 | 29.498 | 1.890 | 1.890 | 0.629 |
| 4.0 | 1.742 | 8.850 | 4.006 | 39.285 | 2.035 | 2.035 | 0.709 |
| 5.0 | 2.174 | 10.414 | 5.000 | 49.033 | 2.162 | 2.162 | 0.763 |
| 6.0 | 2.611 | 11.588 | 6.005 | 58.889 | 2.380 | 2.380 | 0.783 |
※鉄筋連結に関する詳細は、お問い合わせ下さい。
※ブロック転置には吊り鉄筋を使用します。吊り鉄筋の詳細は、お問い合わせ下さい。
サーフフラット[Nタイプ]CADデータダウンロード(会員専用)
![サーフフラット[Nタイプ]](./img/water/shape_flat03.gif)
| 規格 (ton型) | 体積 (㎥) | 型枠面積 (㎡) | 実質量 (ton) | 実重量 (KN) | 基本寸法(単位:m) | ||
|---|---|---|---|---|---|---|---|
| L | B | H | |||||
| 1.0 | 0.454 | 3.050 | 1.044 | 10.238 | 1.300 | 1.300 | 0.370 |
| 2.0 | 0.888 | 4.776 | 2.042 | 20.025 | 1.600 | 1.600 | 0.470 |
| 3.0 | 1.359 | 6.536 | 3.125 | 30.646 | 1.890 | 1.890 | 0.500 |
| 4.0 | 1.758 | 7.519 | 4.043 | 39.648 | 2.035 | 2.035 | 0.580 |
| 5.0 | 2.205 | 9.070 | 5.071 | 49.730 | 2.162 | 2.162 | 0.610 |
| 6.0 | 2.622 | 10.283 | 6.030 | 59.134 | 2.380 | 2.380 | 0.630 |
※鉄筋連結に関する詳細は、お問い合わせ下さい。
※ブロック転置には吊り鉄筋を使用します。吊り鉄筋の詳細は、お問い合わせ下さい。
サーフフラット[NAタイプ]CADデータダウンロード(会員専用)
![サーフフラット[NAタイプ]](./img/water/shape_flat04.gif)
| 規格 (ton型) | 体積 (㎥) | 型枠面積 (㎡) | 実質量 (ton) | 実重量 (KN) | 基本寸法(単位:m) | ||
|---|---|---|---|---|---|---|---|
| L | B | H | |||||
| 1.0 | 0.429 | 3.342 | 0.986 | 9.669 | 1.300 | 1.300 | 0.370 |
| 2.0 | 0.854 | 5.174 | 1.964 | 19.260 | 1.600 | 1.600 | 0.470 |
| 3.0 | 1.276 | 7.129 | 2.934 | 28.773 | 1.890 | 1.890 | 0.500 |
| 4.0 | 1.710 | 8.055 | 3.933 | 38.570 | 2.035 | 2.035 | 0.580 |
| 5.0 | 2.095 | 9.855 | 4.818 | 47.248 | 2.162 | 2.162 | 0.610 |
| 6.0 | 2.531 | 11.028 | 5.821 | 57.085 | 2.380 | 2.380 | 0.630 |
※鉄筋連結に関する詳細は、お問い合わせ下さい。
※ブロック転置には吊り鉄筋を使用します。吊り鉄筋の詳細は、お問い合わせ下さい。
サーフフラット[Tタイプ]CADデータダウンロード(会員専用)
![サーフフラット[Tタイプ]](./img/water/shape_flat05.gif)
| 規格 (ton型) | 体積 (㎥) | 型枠面積 (㎡) | 実質量 (ton) | 実重量 (KN) | 基本寸法(単位:m) | ||
|---|---|---|---|---|---|---|---|
| L | B | H | |||||
| 1.0 | 0.496 | 3.432 | 1.141 | 11.189 | 1.300 | 1.300 | 0.740 |
| 2.0 | 0.974 | 5.393 | 2.240 | 21.967 | 1.600 | 1.600 | 0.940 |
| 3.0 | 1.436 | 7.238 | 3.365 | 32.999 | 1.890 | 1.890 | 1.000 |
| 4.0 | 1.920 | 8.463 | 4.416 | 43.306 | 2.035 | 2.035 | 1.160 |
| 5.0 | 2.393 | 10.117 | 5.504 | 53.976 | 2.162 | 2.162 | 1.220 |
| 6.0 | 2.830 | 11.380 | 6.509 | 63.831 | 2.380 | 2.380 | 1.260 |
※鉄筋連結に関する詳細は、お問い合わせ下さい。
※ブロック転置には吊り鉄筋を使用します。吊り鉄筋の詳細は、お問い合わせ下さい。
施工事例
-

- 兵庫県 大庭頭首工
サーフフラット孔付きタイプ3ton型
-

- 静岡県 宇久須川根固工
サーフフラット標準タイプ4ton型
-

- 富山県 神通川根固工
サーフフラット標準タイプ6ton型
-

- 福井県 木の芽川護床工
サーフフラット突起タイプ1ton型
サーフステップ
- 主な特徴
-
サーフブロックの概要を受け継ぎ、「自然の力との調和」をテーマに、研究・実験を進め開発したブロックです。サーフブロックとの互換性があり、サーフブロックの昇降路としても利用できます。
- 用 途
-
海岸:階段護岸工
形状・諸元表
サーフステップCADデータダウンロード(会員専用)

| 規格 (ton型) | 体積 (㎥) | 型枠面積 (㎡) | 実質量 (ton) | 実重量 (KN) | 基本寸法(単位:m) | ||
|---|---|---|---|---|---|---|---|
| L | B | H | |||||
| 2.0 | 1.031 | 6.600 | 2.371 | 23.252 | 1.500 | 1.500 | 0.590 |
| 4.0 | 1.780 | 9.639 | 4.094 | 40.148 | 1.890 | 1.890 | 0.643 |
※鉄筋連結に関する詳細は、お問い合わせ下さい。
※ブロック転置には吊り鉄筋を使用します。吊り鉄筋の詳細は、お問い合わせ下さい。
施工事例
-

- 福井県 蒲生海岸
サーフステップ2ton型
-

- 茨城県 玉田海岸
サーフステップ2ton型
-

- 富山県 伏木富山港
サーフステップ2ton型
-

- 千葉県 野手海岸
サーフステップ4ton型
サーフフラットLタイプ
- 主な特徴
-
- 1. 河川の根固工に対し、魚巣効果を取り入れたブロックです。
- 2. その形状から、単位当りの敷設個数が少なく、工費削減が期待できます。
- 3. 低水護岸から高水護岸まで対応が可能です。
- 用 途
-
河川:根固工
形状・諸元表
サーフフラットLタイプ(5.0型)CADデータダウンロード(会員専用)

| 規格 (ton型) | 体積 (㎥) | 型枠面積 (㎡) | 実質量 (ton) | 実重量 (KN) | 基本寸法(単位:m) | ||
|---|---|---|---|---|---|---|---|
| L | B | H | |||||
| L-TK | 5.13 | 50.31 | 2.23 | 9.99 | 1.962 | 2.700 | 09.03 |
| L-TK端部型 | 4.90 | 48.05 | 2.13 | 9.61 | 1.962 | 2.500 | 0.903 |
| L-K | 4.85 | 47.56 | 2.11 | 9.07 | 1.962 | 2.700 | 0.653 |
| L-K端部型 | 4.62 | 45.31 | 2.11 | 9.07 | 1.962 | 2.500 | 0.653 |
サーフフラットLタイプ(2.0型)標準型CADデータダウンロード(会員専用)

| 呼 名 | 実質量 (ton) | 実重量 (KN) | 体積 (㎡) | 型枠面積 (㎡) | 基本寸法(単位:m) | ||
|---|---|---|---|---|---|---|---|
| L | B | H | |||||
| L-TK | 2.10 | 20.60 | 0.91 | 5.20 | 1.450 | 1.970 | 0.718 |
| L-T | 2.06 | 20.20 | 0.89 | 5.03 | 1.450 | 1.970 | 0.605 |
| L-K | 2.00 | 19.61 | 0.87 | 4.93 | 1.450 | 1.970 | 0.538 |
| L-N | 1.97 | 19.32 | 0.85 | 4.75 | 1.450 | 1.970 | 0.425 |
サーフフラットLタイプ(2.0型)端部型CADデータダウンロード(会員専用)

| 呼 名 | 実質量 (ton) | 実重量 (KN) | 体積 (㎡) | 型枠面積 (㎡) | 基本寸法(単位:m) | ||
|---|---|---|---|---|---|---|---|
| L | B | H | |||||
| L-TK | 1.98 | 19.42 | 0.86 | 5.01 | 1.450 | 1.800 | 0.718 |
| L-T | 1.94 | 19.02 | 0.84 | 4.84 | 1.450 | 1.800 | 0.605 |
| L-K | 1.89 | 18.53 | 0.82 | 4.74 | 1.450 | 1.800 | 0.538 |
| L-N | 1.85 | 18.14 | 0.80 | 4.57 | 1.450 | 1.800 | 0.425 |
施工事例
-

- 国土交通省 安倍川
サーフフラット L-K5.0
-

- 国土交通省 安倍川
サーフフラット L-TK5.0
-

- 国土交通省 大井川
サーフフラット L-TK5.0
-

- 国土交通省 大井川
サーフフラット L-TK5.0
タインブロックS型(中国・九州地区限定での販売となります。)
- 主な特徴
-
優れた消波性や経済性は元より、見た目にも壁体の千鳥模様が美しく、自然環境にもより適応した直立消波ブロックです。
- 用 途
-
道路(護岸):直立消波工
海岸:直立消波工
形状・諸元表
タインブロックS型(1.0、2.0、4.0ton型)CADデータダウンロード(会員専用)

| 規格 (ton型) | 体積 (㎥) | 型枠面積 (㎡) | 実質量 (ton) | 実重量 (KN) | 基本寸法(単位:m) | ||
|---|---|---|---|---|---|---|---|
| L | B | H | |||||
| 1.0 | 0.462 | 3.809 | 1.063 | 10.424 | 1.240 | 0.900 | 0.720 |
| 2.0 | 0.903 | 5.951 | 2.077 | 20.368 | 1.550 | 1.125 | 0.900 |
| 4.0 | 1.740 | 9.216 | 4.002 | 39.246 | 1.930 | 1.400 | 1.120 |
施工事例
-

- 大分県臼杵市
タインブロックS型 2.0t型および4.0t型
-

- 長崎県南島原市
タインブロックS型 1.0t型
土木建設資材販売
- ・土木安定シート
- ・吸出し防止シート
- ・改良材
- ・アスファルトマット
- ・布製型枠
- ・汚濁防止膜
- ・防舷材
- ・他
















